Localização Alvorada do Sul, Paraná, Brasil

Área 180.0 m2

Ano do projeto 2015

Ano de construção 2017

Colaboração Victor Duarte Vilela

Fotografias Eduardo Macarios

Elementos de Produção Hangar 43

 

 

 

 

 

 

 

 

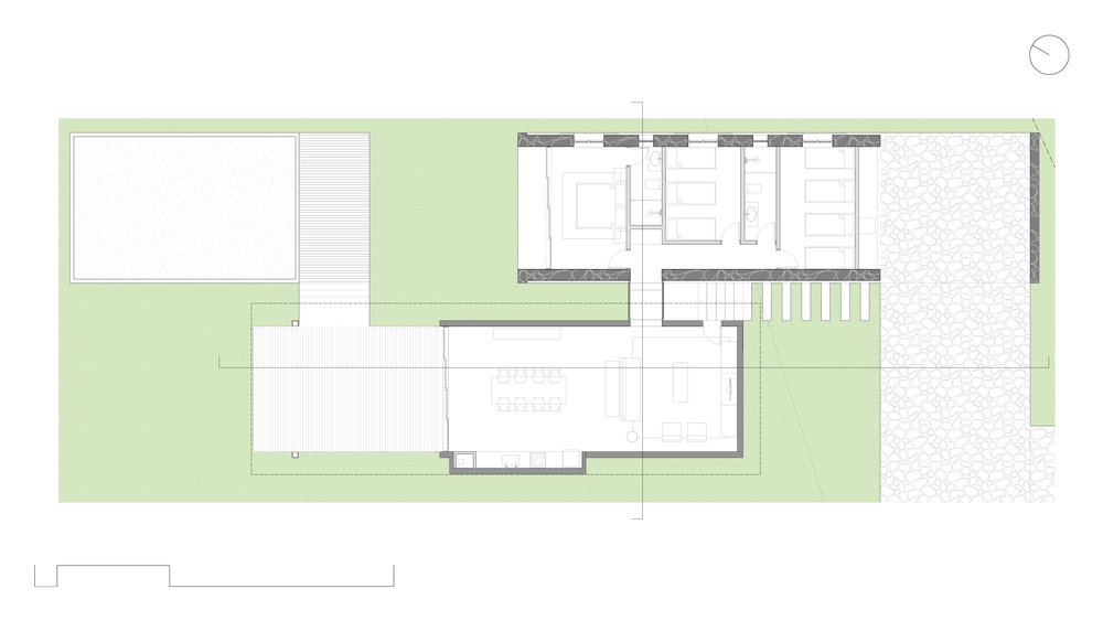
CASA DO LAGO

O projeto desta casa localizada em Alvorada do Sul, em frente ao Rio Paranapanema foi uma grande oportunidade em explorar a relação da arquitetura com a natureza. As principais condicionantes do projeto foram as dimensões alongadas do terreno, seu perfil em desnível acentuado, e claro a conexão e a vista para o lago nos fundos do terreno.

Então, o partido do projeto busca uma inserção harmoniosa da residência no lote ao mesmo tempo que faz uso de seu relevo natural para transformar a residência em uma espécie de mirante para o lago. Sendo assim, optou-se por dividir a casa em duas lâminas longitudinais ao terreno, dividindo o setor social do setor íntimo, criando um respiro natural entre os volumes construídos. Esses dois volumes foram deslocados entre si, aproximando o setor privado ao acesso e ao mesmo tempo, aproximando o setor social do lago.

O bloco social se caracteriza como um grande pavilhão, com ambientes totalmente integrados entre si, permitindo não somente a conexão entre os indivíduos nesses espaços mas também o acesso a vista para o lago à todos. Outro elemento de destaque desta lâmina é a prolongação da cobertura desse pavilhão para fora, criando um deck protegido de contemplação da vista e da área de lazer da residência. Já o bloco íntimo se destaca principalmente pela sua suíte principal, caracterizada por uma grande abertura para o lago, tornando-a em um mirante íntimo.

Contudo, o ponto alto deste projeto se encontra na materialidade da casa: o bloco social foi construído com tijolos reaproveitados de uma antiga fábrica do cliente e o bloco íntimo foi materializado com pedras encontradas no próprio terreno da obra. Esse conceito é conhecido como ‘upcycling’ onde um material considerado descartável é transformado em um material reutilizável sem a necessidade de qualquer processo de reciclagem.